Rainson HDPE Spigot Tee is a versatile and essential pipe fitting used in High-Density Polyethylene (HDPE) piping systems. The tee design allows for the branching of pipelines in a "T" shape, enabling the connection of three pipes at right angles to each other. The spigot end of the tee is designed to fit into the corresponding socket of an HDPE pipe, creating a secure and leak-proof joint through heat fusion techniques.
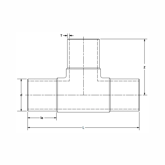
| Ød (mm) | Product Code | D (mm) | le (mm) | Z (mm) |
|---|---|---|---|---|
| 63 | HST63 | 216 | 63 | 107 |
| 75 | HST75 | 259 | 70 | 130 |
| 90 | HST90 | 289 | 79 | 140 |
| 110 | HST110 | 320 | 82 | 157 |
| 125 | HST125 | 354 | 87 | 175 |
| 140 | HST140 | 374 | 92 | 185 |
| 160 | HST160 | 410 | 98 | 203 |
| 180 | HST180 | 451 | 105 | 222 |
| 200 | HST200 | 475 | 112 | 235 |
| 225 | HST225 | 520 | 120 | 263 |
| 250 | HST250 | 580 | 130 | 290 |
| 280 | HST280 | 690 | 139 | 338 |
| 315 | HST315 | 712 | 150 | 352 |
| 355 | HST355 | 780 | 165 | 385 |
| 400 | HST400 | 860 | 180 | 438 |